因為鈦材具有優良的耐腐蝕性,故被廣泛運用于石化、氯堿、冶金、電鍍及航空航天等領域中。由于鈦是稀有金屬,使用鈦材制作設備的成本較高,但也具備使用壽命長、化
學性能穩定、重量輕、結構緊湊和維護方便等優點。在鈦設備加工中,用鈦管制成盤管式換熱器已經成為主流措施。
換熱器最重要的性能指標就是換熱面積,為了增大換熱面積,提高換熱效率,通常使用盤管方式來制作。由于鈦管單價高,因此在制作過程中不僅要化繁為簡,降低制作難度,
保證各項尺寸與形位公差符合圖紙要求,而且要嚴格控制管材廢品率,提高利用率,取得良好的經濟性。
1、矩形鈦盤管零件圖
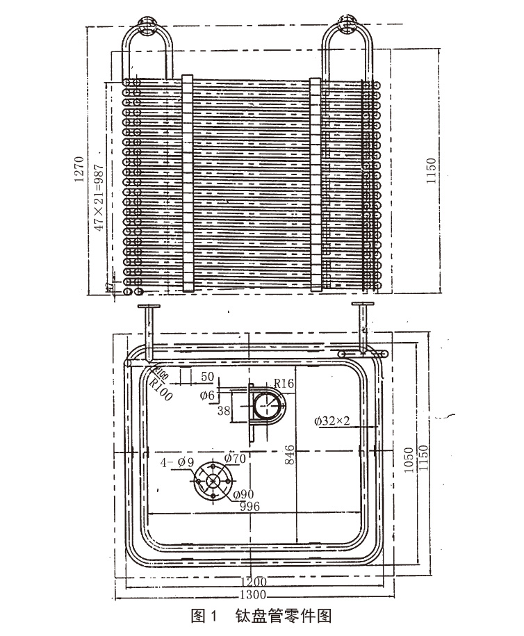
鈦盤管零件如圖1 所示。

鈦盤管使用管指定為寶鈦股份生產的φ32mm×2鈦管,牌號為TA2,鈦管各項指標均符合相關規范要求。
仔細分析圖紙,該套加熱鈦盤管實質為內、外兩付矩形鈦盤管并聯而成額。圖中左上鈦法蘭三通分別連接內外兩付盤管的上接口;圖右上鈦法蘭三通分別連接內外兩付盤管的下接口;內、外盤管合拼對接時,應以內盤管上下管口位置為基準,確定外盤管上下接口上彎位置,并取與大付盤管外部管壁平行,從而保證鈦法蘭副間以及鈦法蘭與管壁之間的平行度。內外盤管圈數都為213/4 圈,每圈升程δ 為3mm 鈦支撐板,與雙頭U 形螺栓雙螺母緊固連接,且所有尺寸未注公差。
由圖1 可知,外盤管最大外壁與電解槽壁間隙如下:
長度方向單邊=(1300 - 1200 - 32)/2 = 34mm;寬度方向單邊=(1150 - 1050)÷2 = 50mm,其中包含支撐鈦板δ = 3mm,M6 U 形雙頭螺栓緊固雙螺母厚度以及外
露2 ~ 3 扣螺牙長度。如果外壁尺寸太大,會造成放不進電解槽的問題,所以必須嚴控外盤管最大外壁尺寸,使其尺寸≤ 1200 mm×1050 mm;內盤管內壁尺寸為電鍍工件
有效工作區,所以也是重要控制尺寸,即內盤管最小尺寸≥ 996mm×846 mm;內、外盤管均通過4×R100×90°,實現4 個角的圓弧過渡連接。φ32 鈦管壁厚為2mm,厚度
中等;過渡彎頭圓弧中心半徑為R100mm,彎曲半徑不是很小,可以靠模冷彎工藝加工,但必須經過鈦管冷彎實驗評定,以確保彎曲處外觀圓滑,無明顯褶皺或變形;彎曲
幅度用圓弧樣片檢驗,上直角檢驗平臺,檢驗直角是否垂直,從而保證內外矩形盤管的長寬尺寸符合零件要求。
另外,每圈鈦盤管中心距為47mm,扣除管徑32mm,即得到每圈升程為47-32 = 15mm。每付盤管都有6 條,分別按照50mm×1100mm×δ3mm 規格選取鈦支撐條配鉆
φ7mm 孔,與M6 的U 形雙頭螺栓配合緊固定型。升程尺寸為15mm,由6 根鈦支撐條來保證劃線分配高度。整體拼接時應先要保證液面高度,然后拼接半圓連接三通,確保
固定鈦法蘭中心距到盤管底面高度尺寸為1270mm。

2、加工工藝編排
第一,加工鈦法蘭2 片。下料割鈦法蘭毛坯,外圓和內徑各留車削余量5mm; 以外圓定位車削內孔D 為φ33mm;以內孔定位車削外圓d 為φ90mm;劃線、打樣
沖眼及鉆孔為φ9mm。
第二,加工M6 雙頭鈦螺栓。下料鈦棒料φ6mm 長度L 為95mm,切130 根;兩端頭加工M6 螺紋,加工長度L為15mm;以φ32mm 圓管為內模,加工成形U 形螺栓,要求兩腳中心距為38mm,外觀對中,端腳齊平。
第三,外協采購M6 鈦螺母,厚度m 為5mm,數量為130×4 = 520 粒。
第四,加工鈦支撐板。下料鈦板厚度δ 為3mm,剪板尺寸為50mm×1050mm,數量為6×2 付= 12 條;由于每圈升程15mm 已固定,即tanα 已知,算出6 根支撐板所在位置與一圈原點行程距離,即可得到每根端頭偏移量,以確定每條支撐板最底圈的鈦管中心位置;找到該點后,以其為基點,劃線確定U 形螺栓孔位置,嚴格保證鈦管中心距以及u 型螺栓兩腳中心間距;打樣沖眼鉆孔為φ7mm。
第五,φ32mm×2 鈦管冷彎工藝評定。參考資料鈦盤管加熱器冷加工成型時,彎曲中徑Y 與展開中徑X 成正比關系為Y=KX,其中K ≈ 0.83 ~ 0.93,取K 值為0.91,算出彎曲中徑為Y=0.91×232=211.12 mm;模具外徑為(Y-32)=(211.12 - 32)= 179.12 ≈ 179mm;用劃針在鈦管管壁上劃長度間距500mm 的2 條線,作為90°冷彎后軸向方向
位移測量點;將前端劃線處與d=179mm 的模具外沿相切點對齊定位,然后鎖緊,待開動盤管機彎管到達角度90°后限位自動斷電;卸下彎管,觀察彎頭表面是否有起皺或扁
管現象;將彎頭放于直角測量平臺,彎頭一邊外壁靠平基準邊,另一邊外壁與另一條基準邊自然貼合;用圓弧樣片內切彎頭內壁進行透光性檢驗;將彎頭放于直角測量平臺,
彎頭兩側外壁貼緊基準邊,此時用直尺測量先前劃線處與另一條平行基準邊的距離L 為433.5mm。有了上述這些關鍵數值,就可以計算并連續進行彎管加工了。
第六,焊接φ32mm×2 直管。內盤管繞制周長約為42m;外盤管繞制周長為(1.2 - 0.032+1.05—0.032)×22圈≈ 48m;寶鈦股份φ32mm×2 鈦管標準長度為6m/ 根,
故內、外盤管應先直管對焊分別為6 或7 根,每2 根對焊接成12 米長的直管;剪取φ3mm 的鈦焊絲,用硝酸或氫氟酸溶液進行酸洗,除凈焊絲表面氧化膜;按焊接工藝規范,
用丙酮或酒精清洗焊接接口以及兩根管頭50mm 焊接熱敏區;鈦管上焊接平臺,用V 型槽外圓定位直管對焊,焊縫不高于2mm,焊后用著色滲透方法檢驗焊縫。
第七, 用地模法焊接制作內盤管定型專用支架。
在平整鋼板上劃出矩形, 尺寸為994mm×844mm; 用L30mm×30mm×3mm 的角鋼,切割6 段1100mm 長的分段,角鐵背部與矩形輪廓線相切,角鐵焊于矩形內部;焊
接位置與鈦支撐板距離5mm 相鄰,用角鋼背邊相切于矩形輪廓線內焊接一個矩形體,即控制內盤管內壁最小尺寸996mm×846mm。
第八,繞制內矩形盤管。量距管端頭500mm 處劃線,將劃線處與模具外沿相切點對齊定位,然后鎖緊,開動盤管機彎第1 個90°彎頭;卸下彎頭,將彎頭放于直角測量
平臺,彎頭一邊外壁靠平基準邊,另一邊找到1094.5mm處并劃線,將劃線處與模具外沿相切點對齊定位,然后鎖緊,開動盤管機彎第2 個90°彎頭,彎好后復核內盤管長度中
心距;將彎頭放于直角測量平臺,彎頭一邊外壁靠平基準邊,另一邊找到944.5mm 處并劃線,將劃線處與模具外沿相切點對齊定位,然后鎖緊,開動盤管機彎第3 個90°彎頭;
彎好后復核內盤管寬度中心距,保證在878mm±2 范圍內即可;當12m 直管加工完成時,將內盤管套在內盤管專用支架外,收緊已彎好的圓弧一端,V 型塊配合測出其到外
壁長度L,在新的12m 長管開始彎管時,扣除這長度即可繼續進行加工;依次重復以上操作,完成內盤管水平方向所有90°彎頭制作。
第九,綁扎并定型內盤管。將繞制好的內盤管套在專用支架外:用V 型塊定位,清洗拼焊12m 彎管段;由下至上逐層理順鈦管位置,升程15 由15mm 厚的木條控制;前后左右四個方向均勻下尺寸,然后用鐵線捆綁扎緊于立焊角鐵上;當內盤管所有水平彎頭固定好,上鈦支撐架,與U 形螺栓鎖緊定型,雙螺母副對頂防松;拆除內盤管專用支架,吊出內盤管放于平臺上,上下接口分別單配2 個90°上彎彎頭。
第十,繞制外矩形盤管。量距管端頭300mm 處劃線,將劃線處與模具外沿相切點對齊定位,然后鎖緊,開動盤管機彎第1 個90°彎頭;將彎頭放于直角測量平臺,彎頭一邊外壁靠平基準邊,另一邊找到1234.5mm 處并劃線,將劃線處與模具外沿相切點對齊定位,然后鎖緊,開動盤管機彎第2 個90°彎頭,彎好后復核內盤管長度中心距在1168mm±3 范圍內即可;將彎頭放于直角測量平臺,彎頭一邊外壁靠平基準邊,另一邊找到1084.5mm 處并劃線,將劃線處與模具外沿相切點對齊定位,然后鎖緊,開動盤
管機彎第3 個90°彎頭,彎好后復核內盤管寬度中心距在1018mm±3 范圍即可;當12m 直管加工完成時,將內盤管套在內盤管專用支架外,收緊已彎好的圓弧一端,V 型塊
配合測出其已有到外壁長度L,在新的12m 長管開始繞彎時,扣除這長度L 即可繼續進行加工;依次重復以上操作,完成外盤管水平方向所有90°彎頭制作。
第十一,用地模法焊接制作外盤管定型專用支架。
在平整鋼板上劃出矩形,尺寸為1203mm×1053mm;用L30mm×30mm×3mm 的角鋼,切割成6 段1100mm 長的分段,角鐵背部與矩形輪廓線相切,角鐵焊于矩形外部,
焊接位置與鈦支撐板距離5mm 相鄰,用角鋼背邊相切于矩形輪廓線外焊接一個矩形體,即控制外盤管外壁最大尺寸為1200mm×1050mm。
第十二,綁扎并定型外盤管。將繞制好的外盤管套入專用支架內:用V 型塊定位,清洗拼焊12m 彎管段;由下至上逐層理順鈦管位置;前后左右四個方向均勻下尺寸,
然后用鐵锨捆綁扎緊于立焊角鐵上;當內盤管所有水平彎頭固定好,上鈦支撐架,與U 形螺栓鎖緊定型,雙螺母防松;拆除外盤管專用支架,吊出外盤管放于平臺上;將內盤管
裝入外盤管內部,并調整四個方向間距均勻;分別以內盤管兩個出口為基準,確定外盤管上下接口上彎位置,保證其與內盤管出口中心面同外盤管外壁面平行;截取外盤管2
個接口與管底高度尺寸1150mm。
第十三,加工鈦法蘭三通。分別量取內、外盤管上接口水平面中心距L1,內外盤管下接口水平面中心距L2,并分別以這兩尺寸進行半圓彎管制作;彎好后將彎頭放于直角測量平臺,彎頭頂端頂緊橫向基準邊,外壁靠緊縱向平基準邊,用直尺在縱向平基準邊上量出136mm 處并劃線,按劃線處用割管刀割斷;如上重復步驟3 次,即得三通接頭圓弧部分;找出半圓中心點,打樣沖眼,上鉆床,鉆φ33mm 孔;兩段鈦法蘭與直管焊接,兩個半圓管分別與內外盤管上下接口對焊,將焊接鈦法蘭的兩根直管插入φ33mm孔中,并用設垂直立面的方法定位兩法蘭的平面度,滿足鈦盤管加工精度要求;將加工完的鈦盤管放入水池內通入10kg/cm2 壓縮空氣,保壓2h 后若無泄露即為合格。

3、 結語
通過分析得知,采用直管對焊,既保證了焊縫質量,又減少了現場焊接勞動強度與焊接風險。通過詳細計算,彎管一次性成型,沒有廢鈦管被割除,提升了經濟效益。
按照本文所設計的方案,合理安排加工工藝,化繁為簡,3天完成5 套該鈦矩形盤管加工任務,獲得了用戶的一致好評。由此可見,選擇正確的工藝,不僅在制作過程中能化繁為簡,降低制作難度,又能嚴格控制管材廢品率,提高利用率,達到良好的經濟性。
相關鏈接